作者ele52020 (小七哥)
標題[請益] 二房二衛含車位請益(屏東市)
時間2023-08-13 09:42:51
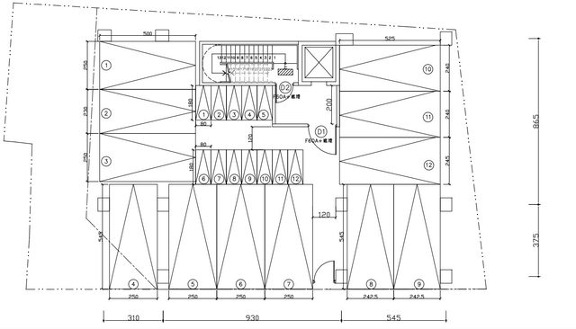
各位大大好,近期有購屋需求,想請教大大的意見,該建案是電梯華夏(5層12戶),小弟看上四樓二房的格局,一樓為平面停車位,戶戶皆有機車跟汽車位(無車道,從四面八方進入,有個別的鐵捲門)但小弟有點不解,這樣硬塞車位,是否有符合法規的規定?且一個車位要130萬上下,該建案靠近火葬場(約1公里)且醫院(約500公尺)面6米馬路(車流不少)是否可考慮呢?
https://i.imgur.com/v6wzoKx.jpg
https://i.imgur.com/mjs5FU6.jpg
-----
Sent from JPTT on my iPhone
--
※ 發信站: 批踢踢實業坊(www.ptt-web.org.tw), 來自: 42.74.247.94 (臺灣)
※ 文章網址: https://www.ptt-web.org.tw/home-sale/M.1691890973.A.48C
推 nckueric: 次臥開窗是面天井,採光會很差 08/13 09:54
→ benson502: 暗廳,單面採光還間接的…離大醫院太近很吵 08/13 10:19
推 inconspicous: 一個人住還行吧,次臥偏小先當書房或儲藏室 08/13 10:21
→ nckueric: ㄧ個人住的話,兩個衛浴有些浪費 08/13 10:23
→ inconspicous: 兩套浴廁,要賣比較好賣 08/13 10:25
推 xikimi: 台全最的包養SD上線啦! 08/13 10:25 推 lighter258: 一衛自用 一衛公用 剛剛好 08/13 10:56
推 dryadl35052: 國仁附近那個吧 08/13 11:01